Kursy walut NBP: USD 3,98 | EUR 4,32 | CHF 4,53 |

Wyszukiwarka
Notes
Zgłoś ofertę
Kalkulator

zgłoś ofertę
Rzetelna firma

Mieszkania
Domy
Działki
Lokale
Obiekty
Szczegóły oferty
Rodzaj oferty
dom blizniak ( sprzedaż )
Numer oferty
1436/3838/ODS
Miejscowość
WARSZAWA, BEMOWO
Cena
1 890 000 PLN kalkulator
Cena za mkw
4 655,17 PLN mkw
Powierzchnia
406.00 m2
Pow. działki
530.00 m2
Liczba pokoi
10
Liczba pięter
1
Stan domu
bardzo dobry
Rok budowy
2014
Droga dojazdowa
asfaltowa
Opis
Doskonała lokalizacja na Bemowie, dobrze skomunikowana, nowe trasy dojazdowe, blisko sklepy, centra handlowe. Dom z 2014 roku nowy, reprezentacyjny nadaje się na cele mieszkalne jak i na firmę. Wysokie pomieszczenia, wnętrza do urządzenia wg własnego gustu i potrzeb. Architektura Pałacyku charakteryzuje się doskonałym i wyjątkowo funkcjonalnym układem pomieszczeń - wszystkie są duże, przestronne i wygodne wg indywidualnego projektu. Ogólnie dom tak z zewnątrz, jak i wewnątrz jest bardzo efektowny i stylowy - elewacja silikonowa najwyższej jakości w klasycznej kolorystyce, eleganckie kolumny, tralki, attyka na dachu, stylowe oświetlenie i dekoracje ścienne. Estetyka domu z pewnością zaspokoi potrzeby najbardziej wymagających nabywców.
Parter domu ma pow. ok. 220 m2 zamknięty przedpokój z wnęką na dużą szafę o dł. 3 m
- garderoba o pow. 5 m2 - jasny gabinet o pow. 15 m2 - łazienka o pow. 6 m2 - kotłownia z pralnią o pow. 7 m2 z indywidualnym przejściem do garażu o pow. 20 m2 - duża i widna kuchnia o pow. 25 m2 przylegająca do wielkiej jadalni połączonej z salonem - ogromny i ciekawy w kształcie salon pałacowy o pow. 120 m2 (z doświetlonym wykuszem, instalacją kominkową oraz stylową kolumną), z szerokim wyjściem do ogrodu.
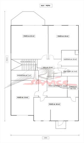
I. piętro domu to - centralnie umiejscowiony, przestronny hall o pow. 18 m2 - jasny o pow. 30 m2 z widokiem na ogród i dużym tarasem nad wykuszem - widny pokój o pow. 20 m2 - pełna łazienka o pow. 8 m2 - ogólna garderoba o pow. 6 m2. - boczny korytarz z centralnego hallu prowadzący do głównej sypialni - główna sypialnia o pow. 30 m2 z wydzieloną częścią dzienną i indywidualną garderobą o pow. 5 m2
- ogólnodostępny salon kąpielowy o pow. 15 m2 (można połączyć drzwiami z główną sypialnią) - duży pokój - druga zasadnicza sypialnia o pow. 25 m2 wraz z własną garderobą o pow. 5 m2. Wszystkie pomieszczenia domu - pałacyku są rzeczywiście duże i dobrze doświetlone - dom wyposażony jest w stylowe okna ze szprosami. Nieruchomość z zewnątrz jest całkowicie wykończona. Wnętrza domu ze ścianami pokrytymi wysokiej klasy gładzią gipsową oraz instalacjami, do indywidualnej aranżacji przez konkretnego nabywcę. Więcej ofert www.ARTSERVICE.waw,pl nie publikowanych w net wysyłam na maila zapraszam.

Dodatkowe informacje: garaż

Kontakt do agenta

Agent prowadzący
Iga Sapińska
Telefon
601327396
E-mail
artservice@wp.pl

Art Service Nieruchomości
Iga Sapinska
Warszawa
tel.: 601327396
email: biuro@artservice.waw.pl

Wyślij zapytanie

Imię i Nazwisko
Telefon
E-mail
Treść zapytania

Wyrażam zgodę na przetwarzanie moich danych osobowych przez firmę Art Service Nieruchomości dla celów związanych z działalnością pośrednictwa w obrocie nieruchomościami, jednocześnie potwierdzam, iż zostałem poinformowany o tym, iż będę posiadać dostęp do treści swoich danych do ich edycji lub usunięcia.

Wyślij ofertę

E-mail

 

ART SERVICE Nieruchomosci Real Estate

Iga Sapinska

tel. 601 327 396

e-mail: artservice@wp.pl

www.ARTSERVICE.waw.pl

© 2026 Art Service Nieruchomości. Wszystkie prawa zastrzeżone.